Ljungvind 53

Välkommen till Ljungvind Lgh 3B – en nybyggd och modernt inredd fjällägenhet på 53 m², belägen med ski in/ski out-läge endast 200 meter från Parkliften på Funäsdalsberget i Kåvan, Funäsdalen. Här bor du bekvämt med närhet till både pist, längdspår, skoterleder och sommarleder, med Funäsfjällens fantastiska fjällvärld precis utanför dörren.

Boka här

4 bäddar

2 vovrum

53 m2

Adress till boendet: Parkstigen 15F, 846 73 Funäsdalen – Lägenhet 3B

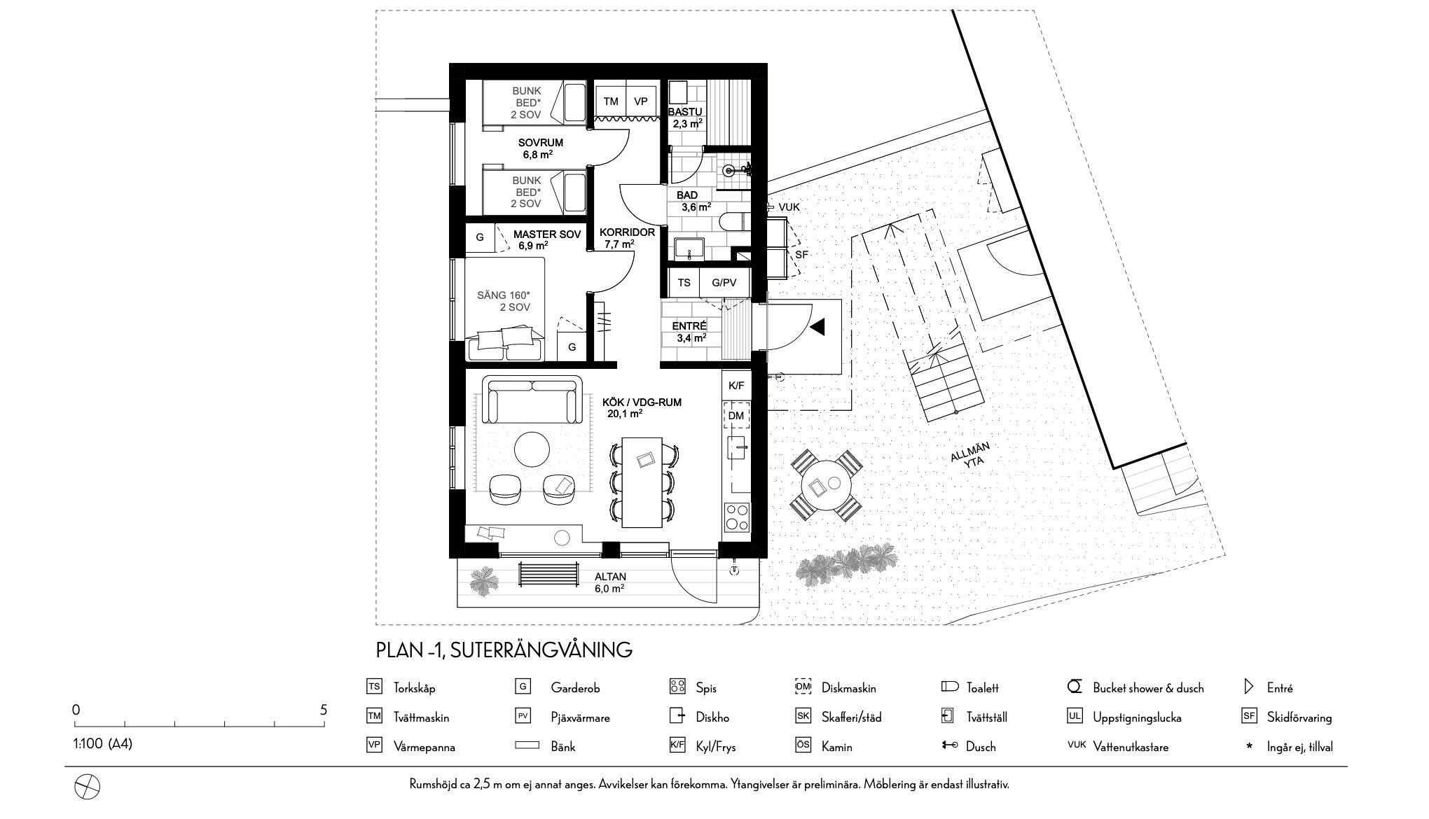
Planskiss

Lägenheten passar perfekt för en familj eller ett sällskap på upp till 4 personer och har två sovrum, ett med dubbelsäng och ett med våningsäng, samt öppen planlösning mellan kök och vardagsrum med en egen bastu – allt du behöver för en avkopplande vistelse i fjällen.

Faciliteter:
Fullt utrustat kök med diskmaskin, kyl, frys, mikro och kaffebryggare
Vardagsrum med matplats, TV och Wi-Fi (fiber)
Tvättmaskin med inbyggd torkfunktion
Torkskåp och pjäxvärmare i entrén
Bastu
Altan i sydvästläge
Två låsbara skidskåp
Parkering på anvisad plats på andra sidan vägen
Elbilsladdning via publika laddare i närheten av Kåvan Express-liften (350 m)
Husdjur: Ej tillåtna
Rökning: Ej tillåten